Domy w zabudowie bliźniaczej

Dodano: 16-07-2025 Numer ogłoszenia: 2358232

Ul. Andersa


Lokalizacja
Reklama
  • Rynek: Pierwotny
  • Miasto: Zambrów
  • Kod pocztowy: 18-300
  • Ulica: Ul. Andersa
  • Ilość pięter: 2
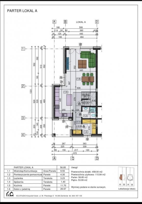
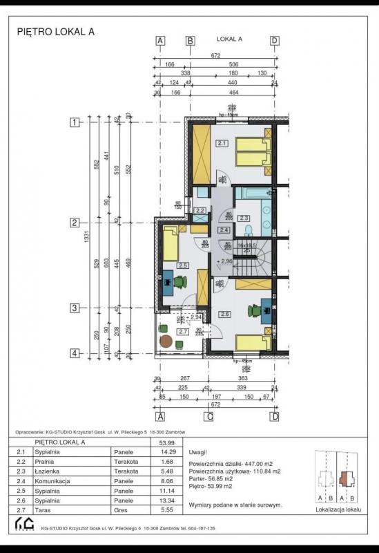
  • Powierzchnia: 160m2
  • Rok budowy: 2025

Opis

Nowa inwestycja – DOMY W ZABUDOWIE BLIŹNIACZEJ

Lokalizacja: ul. Andersa
Powierzchnia: 160 m² (w tym poddasze do własnej adaptacji)
Działka: 4,5 ara
Cena: 4700 zł/m²
Budowa w toku – zalane stropy nad parterem!
Szybki termin realizacji

Nowoczesne domy w zabudowie bliźniaczej w spokojnej, zielonej okolicy – idealne dla rodzin oraz osób szukających przestrzeni i komfortu.
Poddasze daje możliwość dowolnej aranżacji – sypialnia, biuro, strefa relaksu? Wybór należy do Ciebie!

Rezerwacje już trwają – nie przegap swojej szansy!
Kontakt: 506 919 397
Reklama
Wróć do