Zdjęcia Wiemy, kto zajmie się rozbudową Miejskiego Ośrodka Kultury w Zambrowie - fotorelacja

10/09/2024 | Autor: Portal zambrow.org | źródło: zambrow.org

Fotografie inwestycje Zambrów

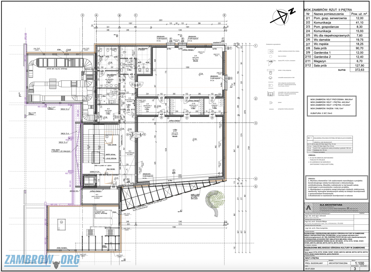
Rozbudowa Miejskiego Ośrodka Kultury w Zambrowie prezentuje się imponująco. Wybrana oferta firmy Sokołowscy Nieruchomości sp. z o.o. z Warszawy za 12,9 mln zł ma szansę odmienić pejzaż kulturalny miasta. Zaplanowane nowe pomieszczenia, przestrzenie i estetyka obiektu zachwycają. To inwestycja, która uskrzydla wyobraźnię i obiecuje dynamiczny rozwój kulturalny regionu. Zdjęcia prezentujące oferty i projekty zapadają w pamięć swoją nowoczesnością i kreatywnością. Odpowiednio zaplanowana i efektowna rozbudowa MOK może stać się nowym sercem kulturalnym Zambrowa. Patrząc na galerię z propozycjami ofert i wizualizacjami przyszłego obiektu, trudno się nie emocjonować i nie czekać na efekt końcowy.

Miasto Zambrów, Remont drogi Zambrów, Miejski Ośrodek Kultury miasto Zambrów - zdjęcia

Najnowsze wiadomości